Имот на 150 метра от морето с две спални
5% Гарантирана възвращаемост ▿
Надежден план за изплащане ▿
Надежден план за изплащане ▿
Поддръжка на имота ▿
За имота
Описание
Имотите се намират в района Скала Рахони, на 150 метра от морето, с лесен достъп до плажа, магазини и ресторанти. Предложението включва 34 жилища, разположени в три сгради, проектирани с модерен дизайн и практични, светли интериори.
Общите пространства са озеленени, с общ плувен басейн и градина, които осигуряват спокойна и приятна среда за отдих. Осигурен е и открит паркинг за удобство на собствениците и гостите.
Жилищата се предлагат напълно завършени „до ключ“, с възможност за избор на плочки, санитария за баня, кухненски шкафове, интериорни врати и довършителни детайли.
Подходящи са за отдаване под наем през летния сезон, както и за лично ползване. Предлага се съдействие за сезонно управление и организация на наемния процес, което улеснява дистанционното притежание на имот на остров Тасос.
Очаквана дата на предаване: Март 2027
Информация
Информация:
Имотите са наименовани с текст D4, D5, D8 и т.н;
Маркираните с текст SOLD са продадени, останалите са свободни за покупка.

31 Апартамента с площ от 30,69 кв.м. до 37,49 кв.м.
Състоящи се от:
⚬ Дневна с кухненски бокс, спалня и баня

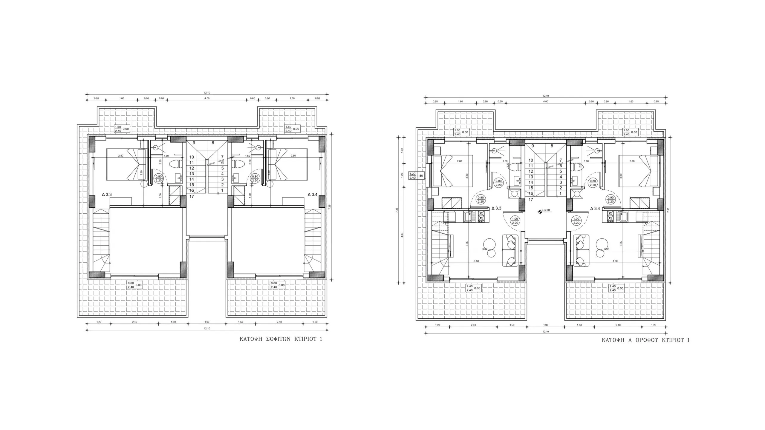
3 Апартамента на етаж с таванско помещение от 55,45 кв.м до 56,36кв.м
Състоящи се от:
⚬ Хол с кухненски бокс, 2 спални, 2 бани

31 Апартамента с площ от 30,69 кв.м. до 37,49 кв.м.
Състоящи се от:
⚬ Дневна с кухненски бокс, спалня и баня

3 Апартамента на етаж с таванско помещение от 55,45 кв.м до 56,36кв.м
Състоящи се от:
⚬ Хол с кухненски бокс, 2 спални, 2 бани
Допълнително
Допълнително
Снимки на имота
Снимки
Разпределение и заетост на имотите до момента
Скала Рахонио се намира на северозападното крайбрежие на остров Тасос и има голямо туристическо развитие. Намира се на 11 км от Лименас и представлява пристанището на село Рахони.Отлично съчетание на море с планина- обширен пясъчен плаж с плитки води и борове,коѝто достигат до морето.






































