Апартамент с две спални на 270 метра от морето
5% Гарантирана възвращаемост ▿
Надежден план за изплащане ▿
Надежден план за изплащане ▿
Поддръжка на имота ▿
За имота
Описание
Имотите се намират в района Паралия Офринио, на 270 метра от брега. Предложението включва 16 апартамента, проектирани с модерен дизайн, изчистени линии и функционални разпределения, като големите прозорци осигуряват естествена светлина във всички помещения.
Външните пространства са озеленени, създавайки свежа и приятна среда. Осигурен е паркинг за удобство на собствениците и гостите.
Жилищата се предлагат напълно завършени „до ключ“, с възможност за избор на плочки, санитария за баня, кухненски шкафове, интериорни врати и довършителни детайли.
Имотите са подходящи за отдаване под наем през летния сезон, както и за лично ползване. Предлага се съдействие за сезонно управление и организация на наемния процес, което улеснява дистанционното притежание на имот в района.
Очаквана дата на предаване: Октомври 2026
Информация
Информация:
Имотите са наименовани с текст D4, D5, D8 и т.н;
Маркираните с текст SOLD са продадени, останалите са свободни за покупка.

8 апартамента на партерния етаж с площ от 30,84 кв.м. до 37,42 кв.м.
Състоящи се от:
⚬ Хол с кухненски бокс, 1 Спалня и 1 Баня

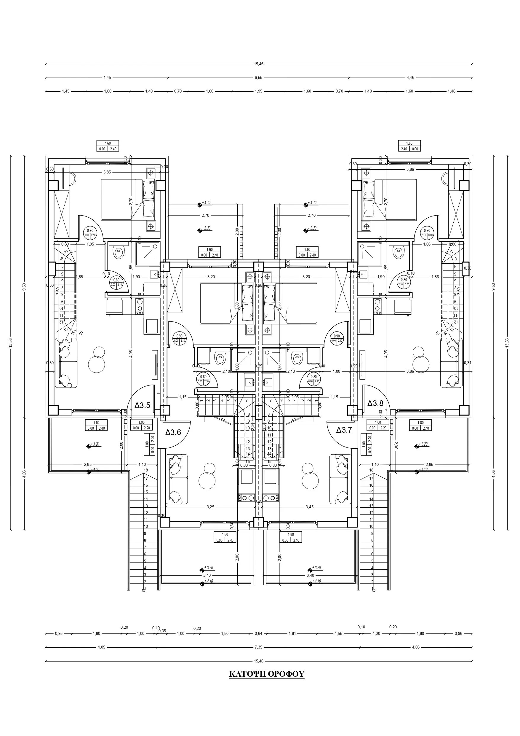
8 апартамента на етаж с таванско помещение от 50,14кв.м. до 62,07кв.м.
Състоящи се от:
⚬ Хол с кухненски бокс, 2 Спални и 2 Бани

8 апартамента на партерния етаж с площ от 30,84 кв.м. до 37,42 кв.м.
Състоящи се от:
⚬ Хол с кухненски бокс, 1 Спалня и 1 Баня

8 апартамента на етаж с таванско помещение от 50,14кв.м. до 62,07кв.м.
Състоящи се от:
⚬ Хол с кухненски бокс, 2 Спални и 2 Бани
Допълнително
Допълнително
Снимки на имота
Снимки
Разпределение и заетост на имотите до момента
Паралия Офринио е туристически курорт със 17 километрова непрекъсната крайбрежна ивица наградена със син флаг.
Селището привлича хиляди посетители през летния сезон, но също така има постоянни жители през цялата година.
Намира се в близост до основни забележителности, на 5 км от Амфиполи, на около 60 км от градовете Кавала, Драма и Серес и на 100 км от Солун.































