Модерни имоти на 80 метра от плажа
5% Гарантирана възвращаемост ▿
Надежден план за изплащане ▿
Надежден план за изплащане ▿
Поддръжка на имота ▿
За имота
Описание
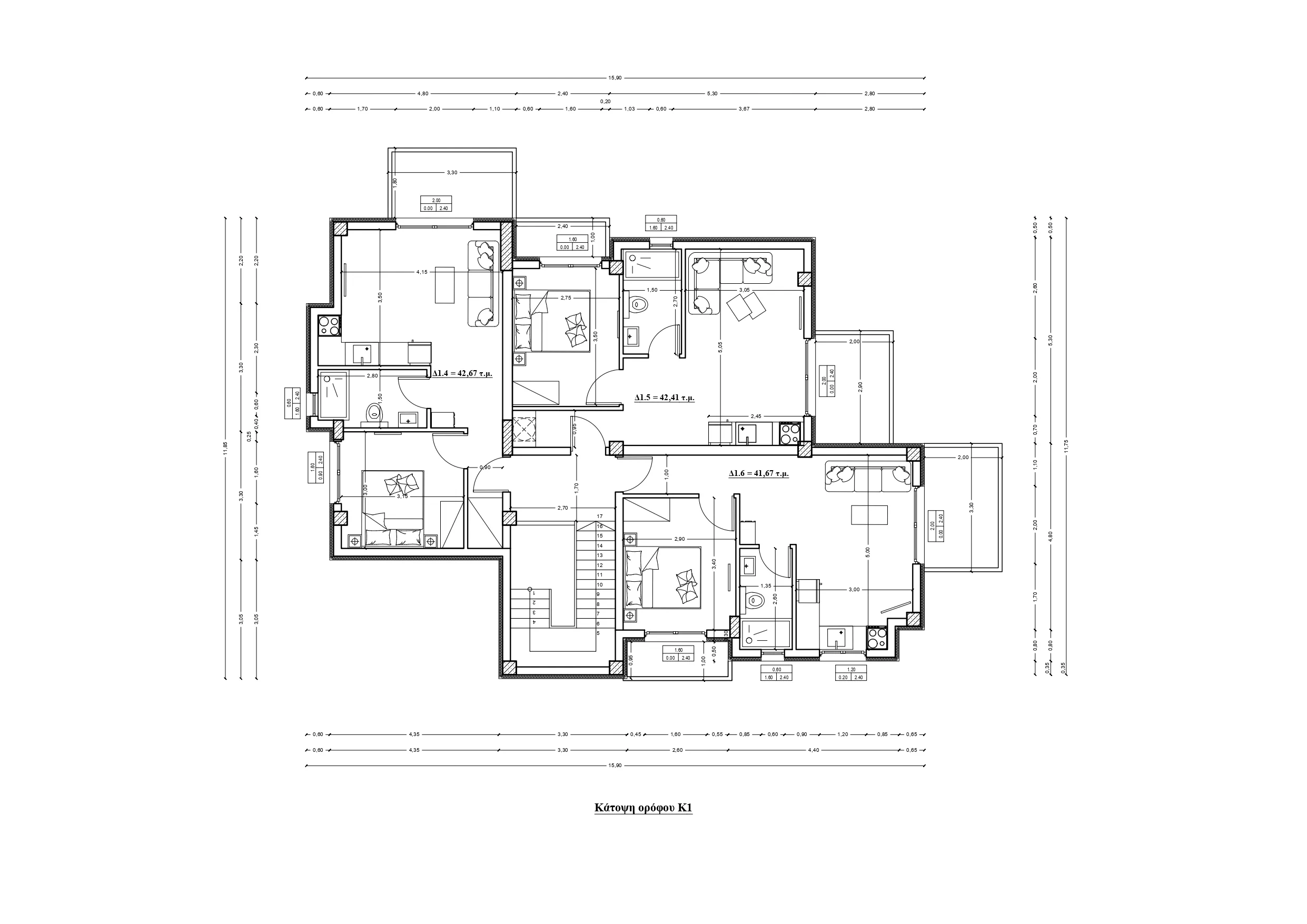
В района Неа Кердилия, на 100 метра от морето, се предлага нов комплекс с 18 апартамента и 1 мезонет. Жилищата са проектирани с модерен дизайн, изчистени линии и функционално разпределение, осигуряващи комфортна и стилна среда за живот.
Комплексът разполага с общ басейн и озеленени площи, които създават приятна атмосфера за отдих и социални моменти.
Апартаментите се предлагат напълно завършени „до ключ“, с възможност за избор на плочки, санитария за баня, кухненски шкафове, интериорни врати и довършителни детайли.
Имотите са подходящи за лично ползване или отдаване под наем през летния сезон, като се предлага и съдействие за сезонно управление и организация на наемния процес, улесняващо дистанционното притежание.
Очаквана дата на предаване: Март 2027
Информация
Информация:
Имотите са наименовани с текст D4, D5, D8 и т.н;
Маркираните с текст SOLD са продадени, останалите са свободни за покупка.

18 апартамента с площ от 39,58 кв. м до 52,79 кв. м
Състоящи се от:
⚬ Хол с кухненски бокс, 1 Спалня, 1 Баня

1 мезонет с площ 91,88 кв. м
Състоящ се от:
⚬ Хол с кухненски бокс, 2 Спални, 1 Самостоятелна баня

18 апартамента с площ от 39,58 кв. м до 52,79 кв. м
Състоящи се от:
⚬ Хол с кухненски бокс, 1 Спалня, 1 Баня

1 мезонет с площ 91,88 кв. м
Състоящ се от:
⚬ Хол с кухненски бокс, 2 Спални, 1 Самостоятелна баня
Допълнително
Допълнително
Снимки на имота
Снимки
Разпределение и заетост на имотите до момента
Разположена по протежението на Стримоническия залив, Паралия Неа Кердилия впечатлява с фин златист пясък и кристално чисти води, създавайки идеални условия за плуване и пълноценна почивка.
Достъпът е лесен и удобен, а по крайбрежието са разположени уютни кафенета и традиционни таверни, където гостите могат да се насладят на местни кулинарни специалитети с прекрасен изглед към морската шир.
Спокойната атмосфера и гостоприемният характер на района го превръщат в предпочитана дестинация за семейства и туристи, които търсят хармония с природата.


































