Имот с басейн на 170 метра от морето
5% Гарантирана възвращаемост ▿
Надежден план за изплащане ▿
Надежден план за изплащане ▿
Поддръжка на имота ▿
За имота
Описание
В района Стримонико, на 170 метра от плажа Враснон, се изгражда комплекс с 20 съвременни къщи. Жилищата разполагат с просторни помещения и веранди с изглед към градината или морето, като архитектурата им е съобразена с природната среда и максимално използва естествената светлина.
Комплексът включва общ басейн и озеленени площи, създаващи спокойна и приятна среда за отдих. В близост има кафенета, таверни и магазини, осигуряващи удобство и разнообразни възможности за свободното време.
Къщите се предлагат напълно завършени „до ключ“, с избор на плочки, санитария, кухненски шкафове, интериорни врати и довършителни детайли.
Имотите са подходящи за лично ползване или отдаване под наем през летния сезон, като се предлага и съдействие за управление на наемния процес, улесняващо дистанционното притежание.
Очаквана дата на предаване: Декември 2027
Информация
Информация:
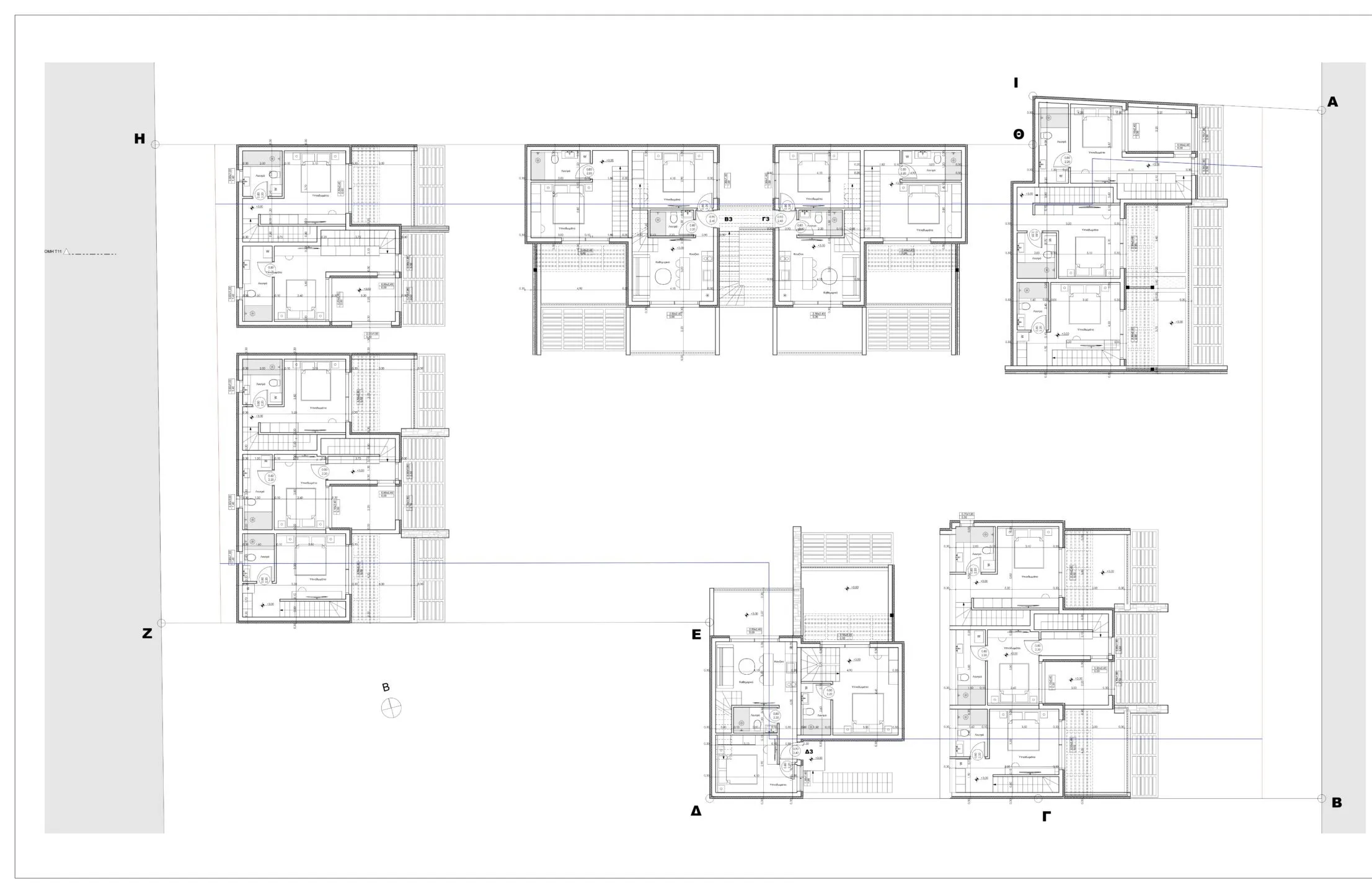
Имотите са наименовани с текст D4, D5, D8 и т.н;
Маркираните с текст SOLD са продадени, останалите са свободни за покупка.

3 апартамента на партерния етаж с площ 35,2 кв.м
Състоящи се от:
⚬ Хол с кухня, 1 Спалня, 1 Баня

3 апартамента с таванско помещение 61,95 кв.м
Състоящи се от:
⚬ Хол-кухня, 2 Спални, 2 Бани

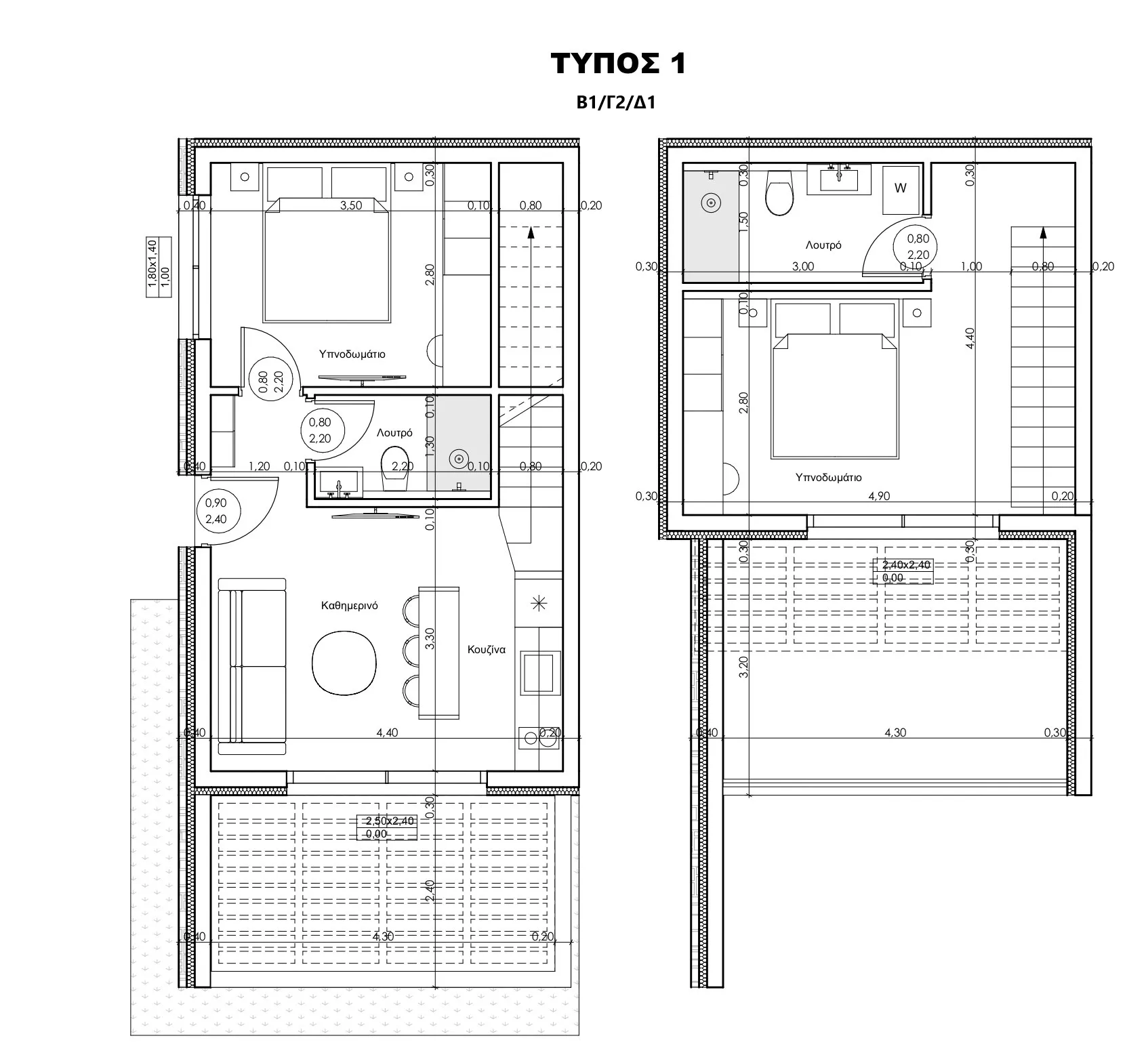
14 мезонета 61,40 кв.м
Състоящи се от:
⚬ Хол-кухня, 2 Спални, 2 Бани

3 апартамента на партерния етаж с площ 35,2 кв.м
Състоящи се от:
⚬ Хол с кухня, 1 Спалня, 1 Баня

3 апартамента с таванско помещение 61,95 кв.м
Състоящи се от:
⚬ Хол-кухня, 2 Спални, 2 Бани

14 мезонета 61,40 кв.м
Състоящи се от:
⚬ Хол-кухня, 2 Спални, 2 Бани
Допълнително
Допълнително
Снимки на имота
Снимки
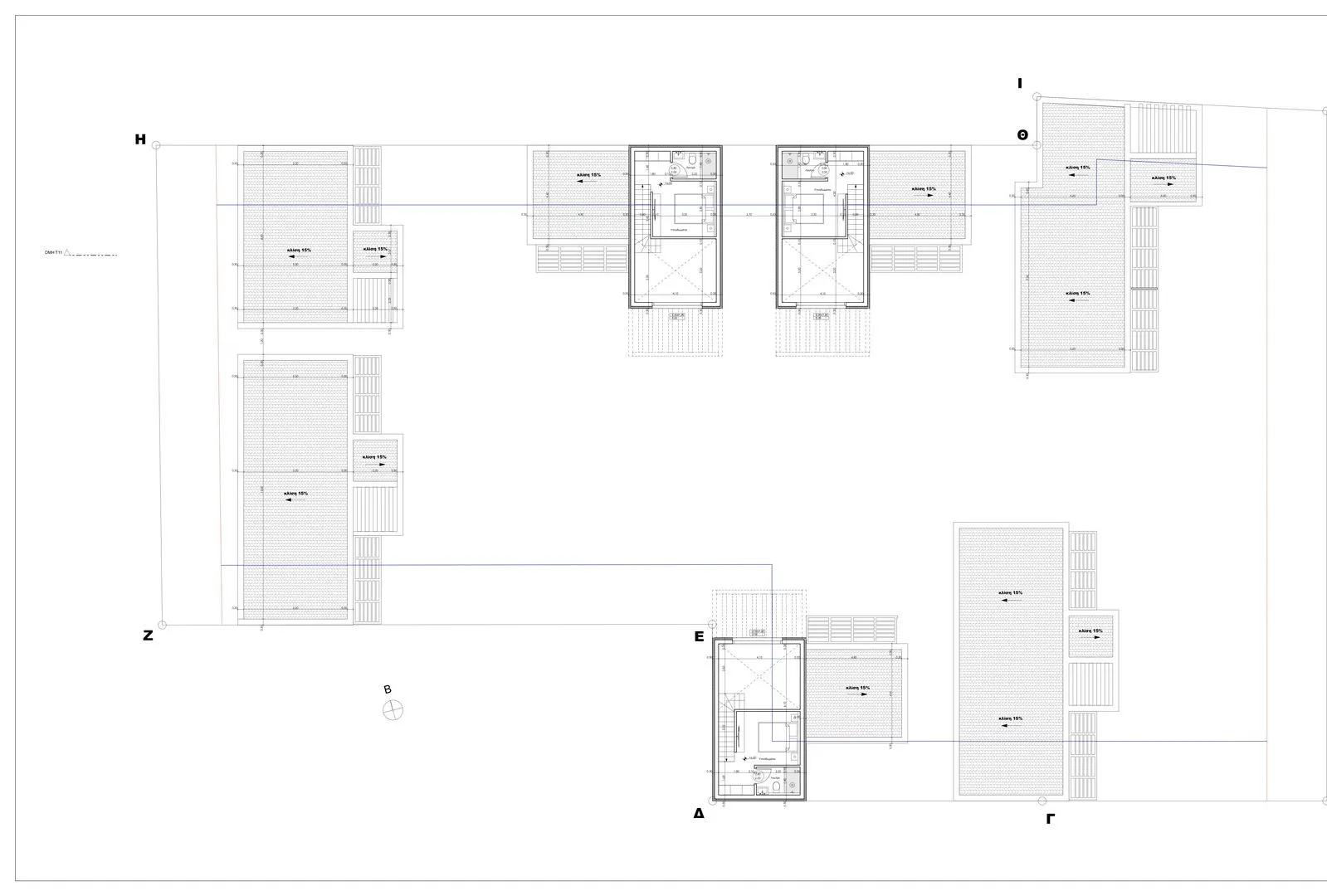
Разпределение и заетост на имотите до момента
Врасна съчетава традиционното очарование на планинското селище с модерния комфорт на Неа Врасна и нейния плаж.
С кристално чисти, отличени води, златист пясъчен бряг, добре развита инфраструктура и гостоприемна атмосфера, това е идеална дестинация за почивка и автентични летни преживявания.































