Уютен двустаен апартамент
5% Гарантирана възвращаемост ▿
Надежден план за изплащане ▿
Надежден план за изплащане ▿
Поддръжка на имота ▿
За имота
Описание
В района Керамоти, на 200 метра от морето, се изгражда нов комплекс с 12 апартамента. Жилищата са проектирани с акцент върху функционалността и комфорта, с интериори, които осигуряват уютна и спокойна среда за ежедневие и почивка.
Комплексът включва озеленени общи площи, създаващи приятна атмосфера за отдих и социални моменти.
Апартаментите се предлагат напълно завършени „до ключ“, с възможност за избор на плочки, санитария за баня, кухненски шкафове, интериорни врати и довършителни детайли.
Жилищата са подходящи за лично ползване или отдаване под наем през летния сезон, като се предлага и съдействие за сезонно управление и организация на наемния процес.
Очаквана дата на предаване: Юни 2027
Информация
Информация:
Имотите са наименовани с текст D4, D5, D8 и т.н;
Маркираните с текст SOLD са продадени, останалите са свободни за покупка.

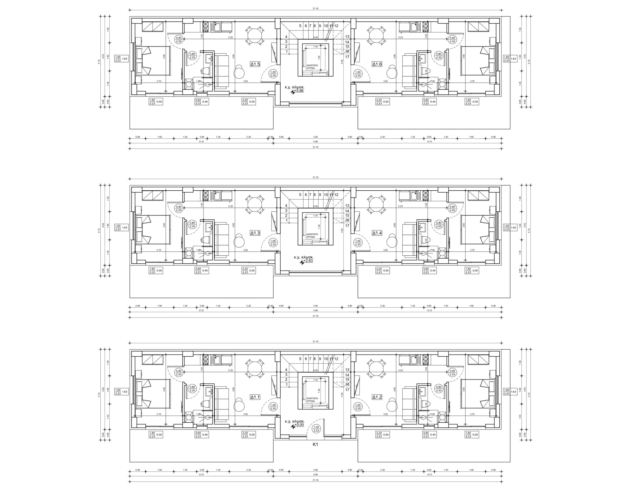
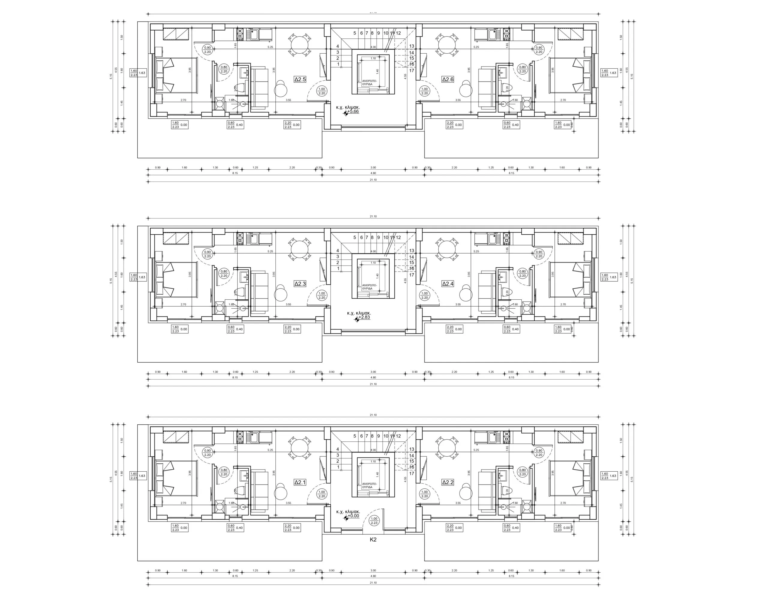
12 апартамента с площ 38,90 кв.м
Състоящи се от:
⚬ Дневна с кухненски бокс, 1 Спалня, 1 Баня

12 апартамента с площ 38,90 кв.м
Състоящи се от:
⚬ Дневна с кухненски бокс, 1 Спалня, 1 Баня
Допълнително
Допълнително
Снимки на имота
Снимки
Разпределение и заетост на имотите до момента
Керамоти е популярно крайбрежно село в префектура Кавала.
То е второто пристанище на Кавала, което осъществява връзка с остров Тасос, и е развиваща се туристическа дестинация, която през последните години привлича голям брой туристи.
Керамоти разполага с голям плаж с фин пясък и кристално чиста вода.
Близостта му до известни археологически и културни обекти го прави идеален за престой, съчетаващ спокойна почивка, но без да лишава пътешественика от развлечения!
















