Двустайни и тристайни имоти на 150 метра от морето
5% Гарантирана възвращаемост ▿
Надежден план за изплащане ▿
Надежден план за изплащане ▿
Поддръжка на имота ▿
За имота
Описание
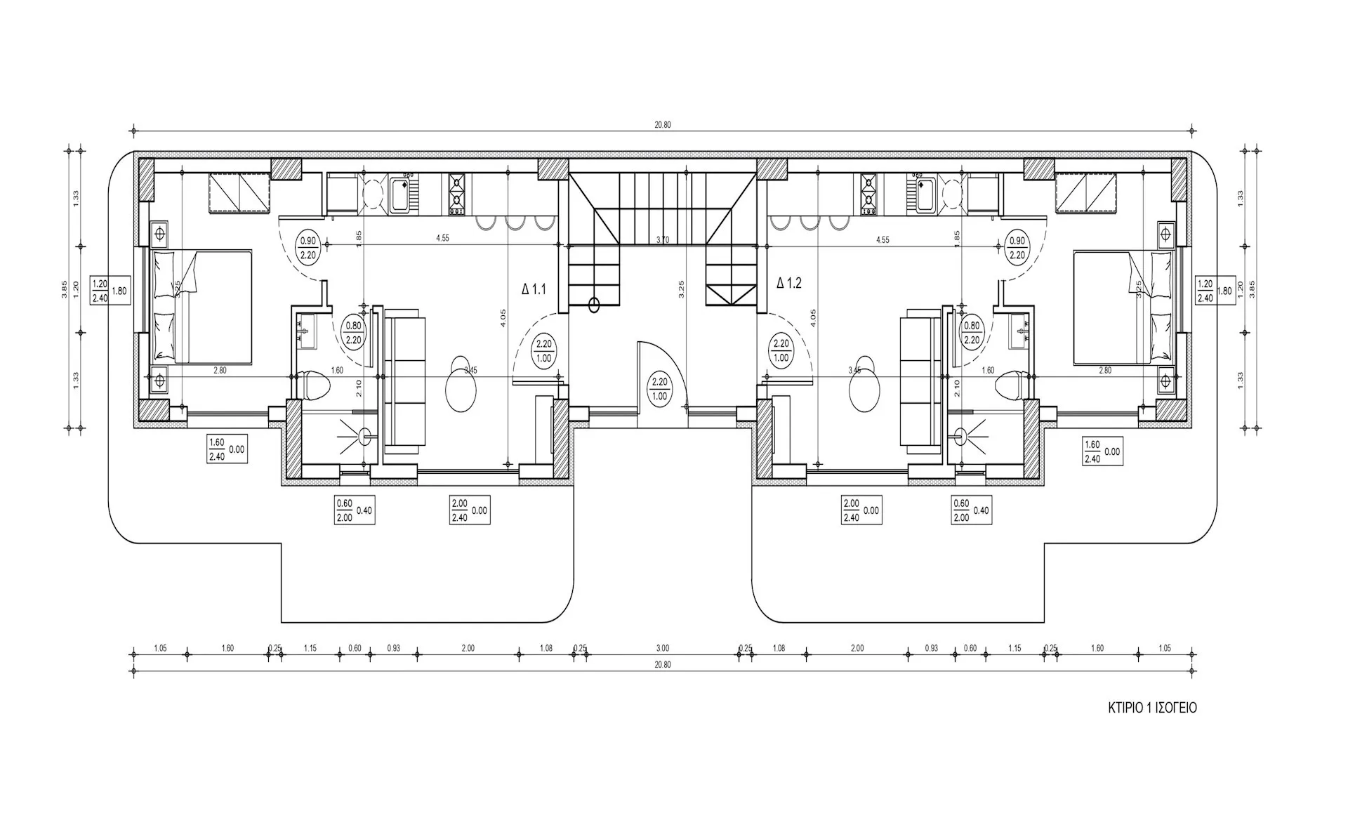
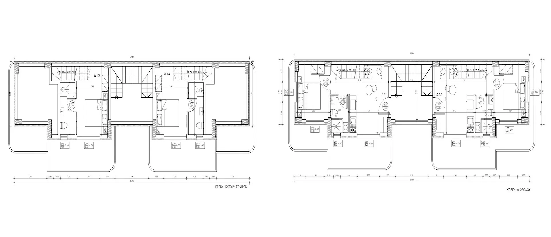
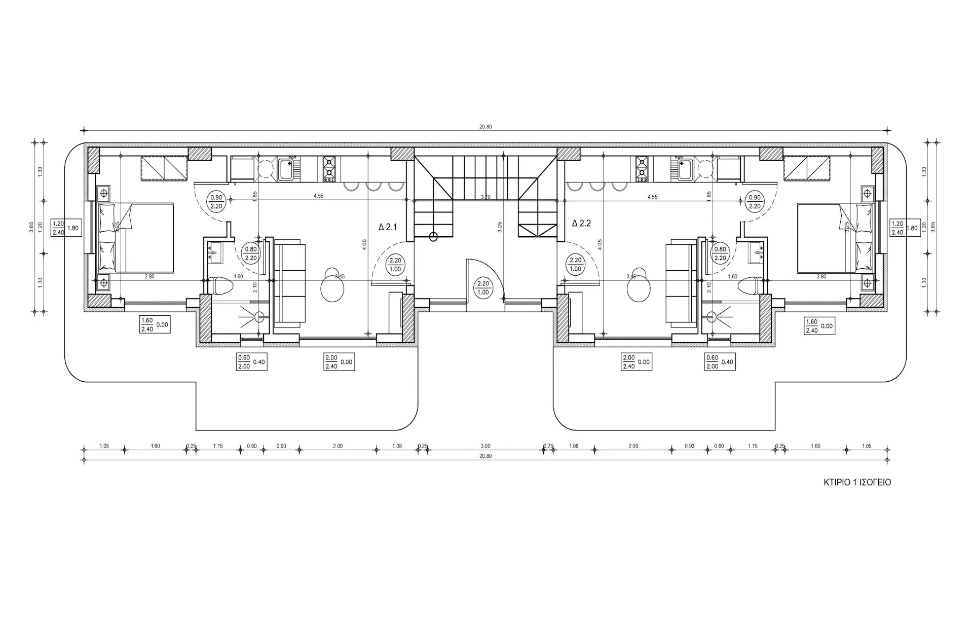
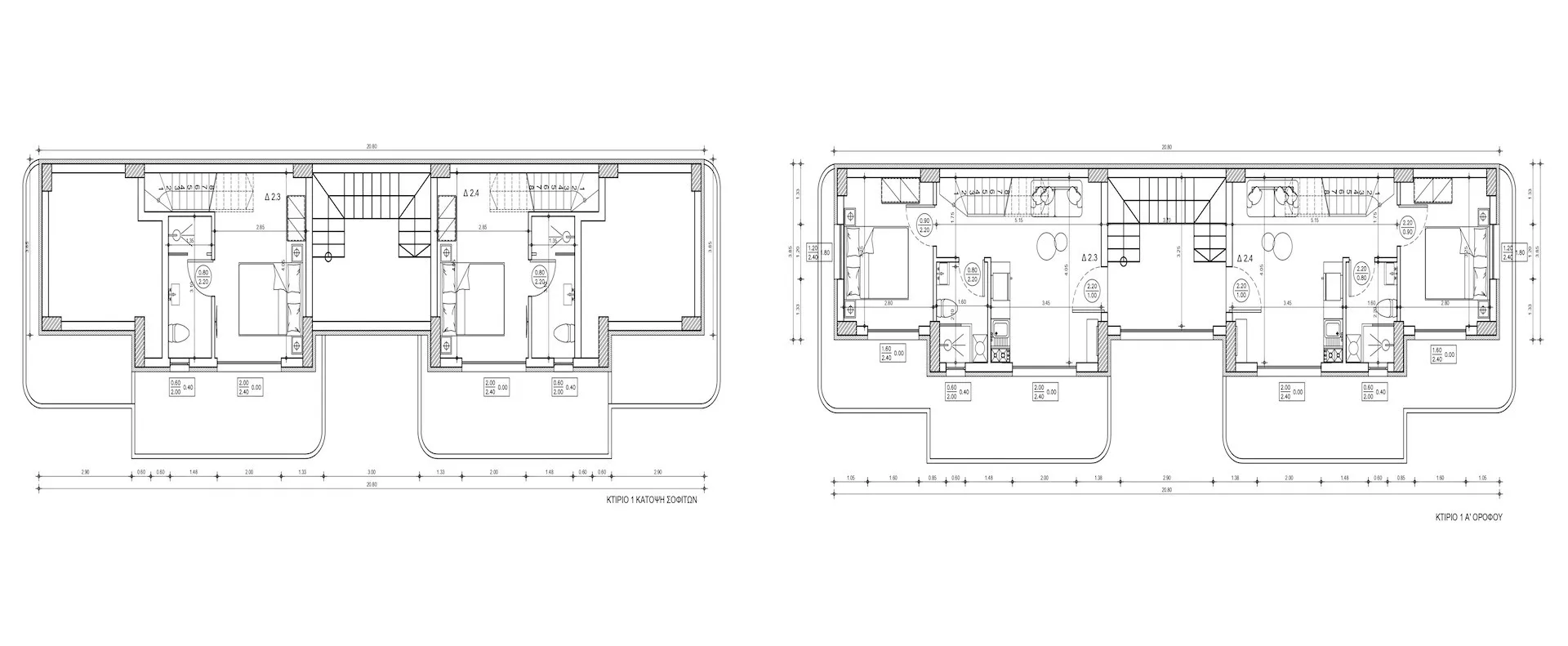
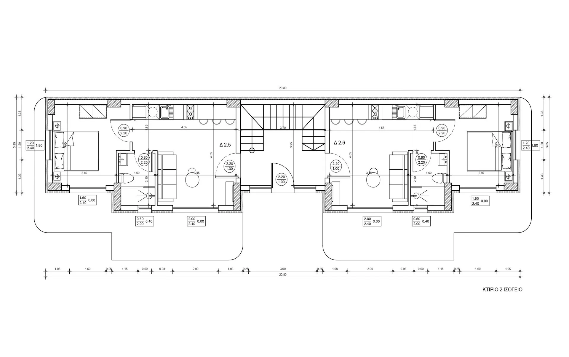
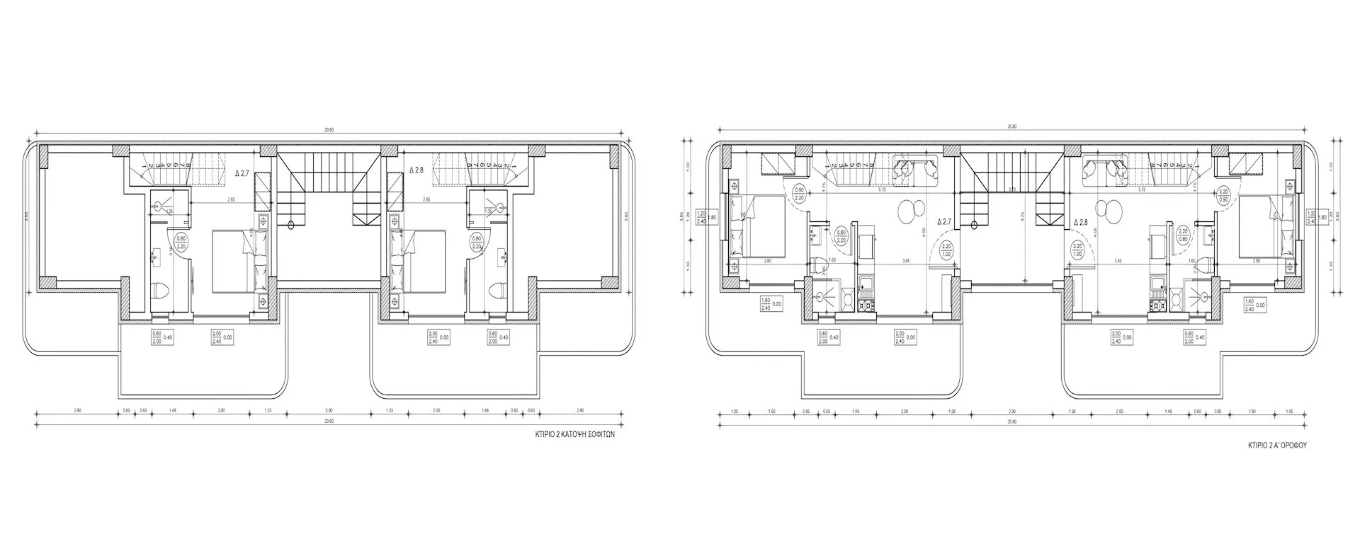
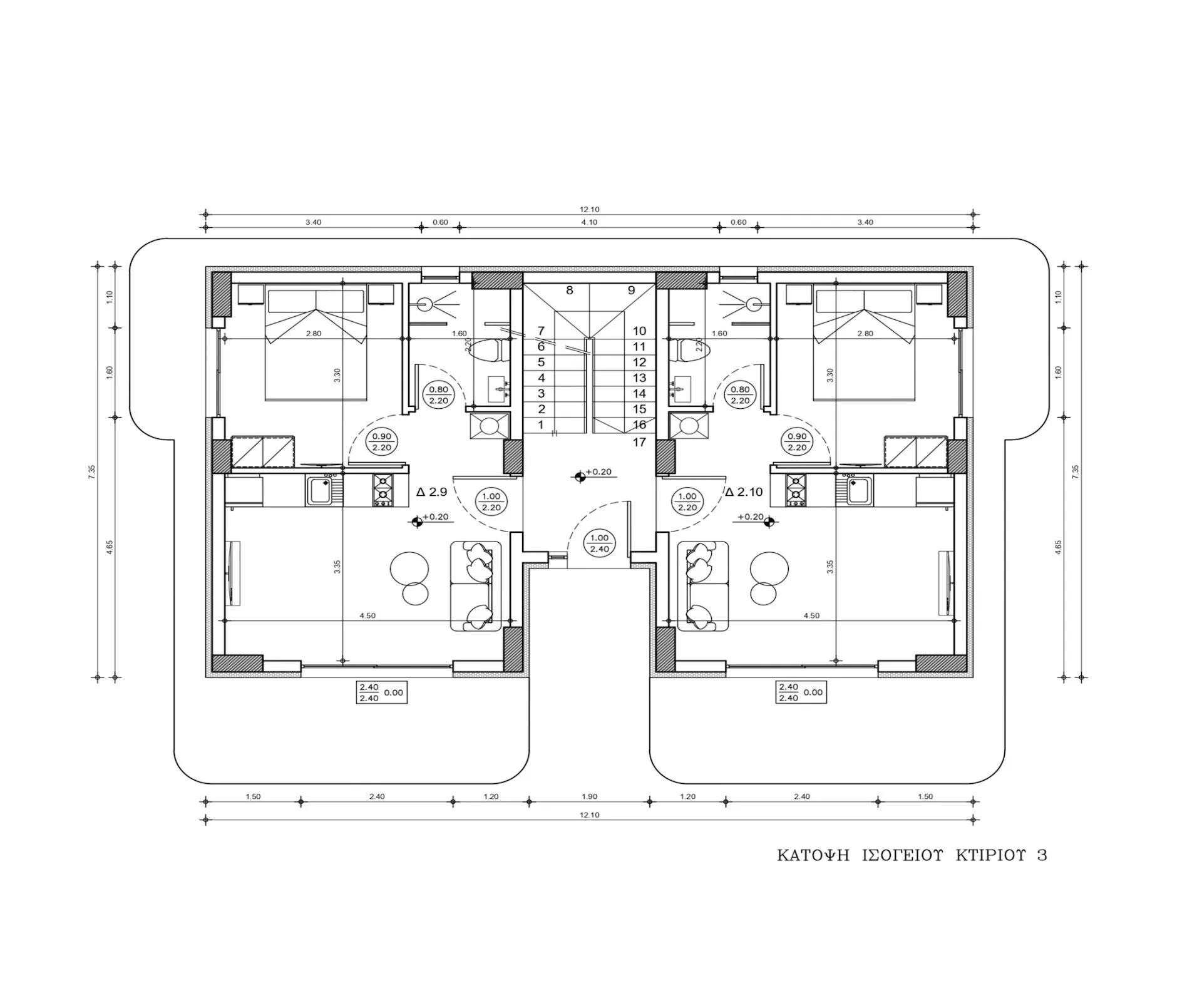
Имотът се намира в Скала Потамия, на остров Тасос, на около 150 метра от морето. Сградата включва общо 24 апартамента с практично разпределение, ориентирано към ежедневно ползване и сезонен престой.
Жилищата разполагат с балкони и изглед към морето. Изпълнени са с PVC дограма с двоен стъклопакет, входни врати с повишена сигурност, комарници и тавански помещения. Около сградата има озеленена градина и общи плувни басейни, които повишават комфорта и интереса при отдаване под наем през летния сезон.
Апартаментите се предлагат напълно завършени „до ключ“, с възможност за избор на плочки, санитария за баня, кухненски шкафове, интериорни врати и довършителни детайли.
Имотите са подходящи както за лично ползване, така и за сезонно отдаване под наем. Предлага се съдействие за управление и организация на наемния процес, което улеснява собственици, които не пребивават постоянно в Гърция.
Очаквана дата на предаване: Май 2028
Информация
Информация:
Имотите са наименовани с текст D4, D5, D8 и т.н;

12 апартамента на партерния етаж с площ от 36,95 кв.м. до 37,52 кв.м
Състоящи се от:
⚬ хол с кухненски бокс, 1 спалня, 1 баня

12 апартамента на етаж с таванско помещение от 55,45 кв.м. до 60,47 кв.м
Състоящи се от:
⚬ дневна, 2 спални, 2 бани

12 апартамента на партерния етаж с площ от 36,95 кв.м. до 37,52 кв.м
Състоящи се от:
⚬ хол с кухненски бокс, 1 спалня, 1 баня

12 апартамента на етаж с таванско помещение от 55,45 кв.м. до 60,47 кв.м
Състоящи се от:
⚬ дневна, 2 спални, 2 бани
Допълнително
Допълнително
Снимки на имота
Снимки
Разпределение и заетост на имотите до момента
Скала Потамия се намира в източната част на Тасос и е една от най-популярните дестинации за почивка.
Плажът Golden Beach, е един от най-известните плажове на острова, с фин, златист пясък, който се простира на около 3 км.
Водите са плитки, чисти и тюркоазени, идеални за плуване и водни спортове.












































