Модерни апартаменти с една или две спални
5% Гарантирана възвращаемост ▿
Надежден план за изплащане ▿
Надежден план за изплащане ▿
Поддръжка на имота ▿
За имота
Описание
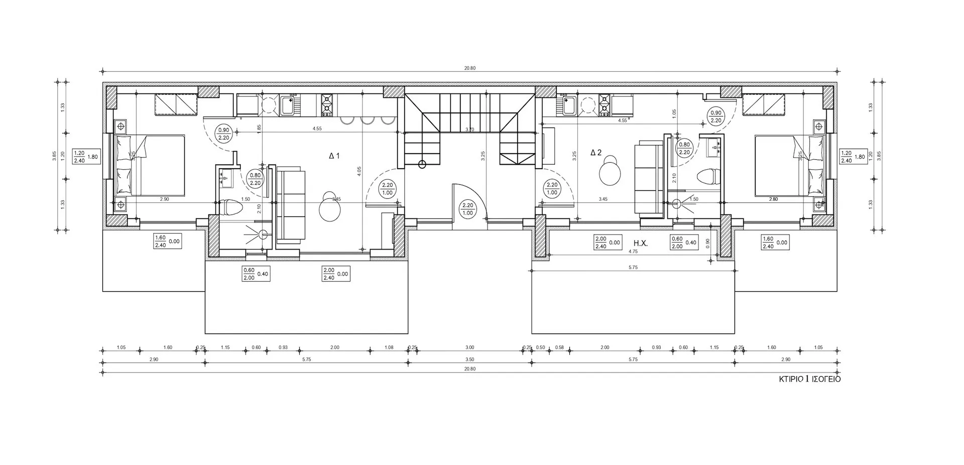
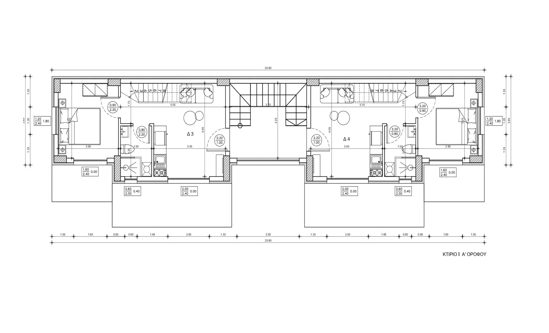
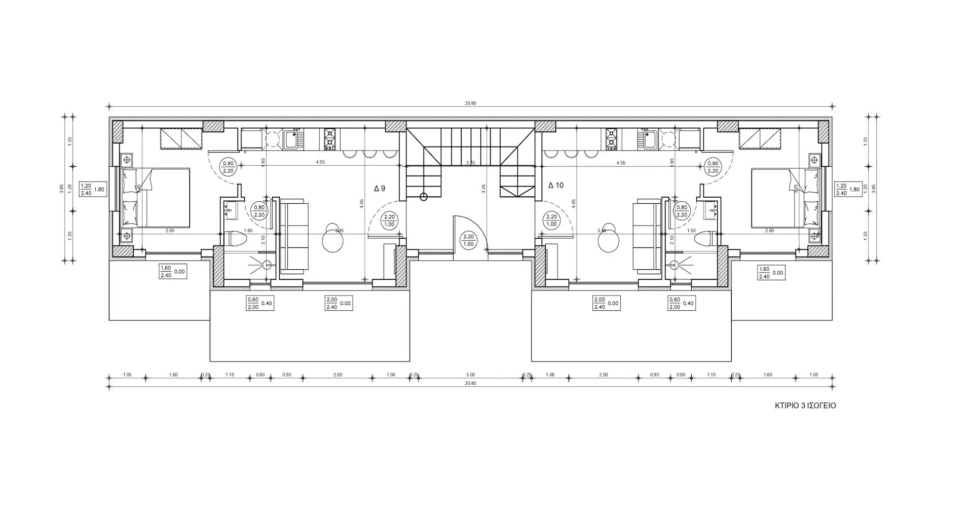
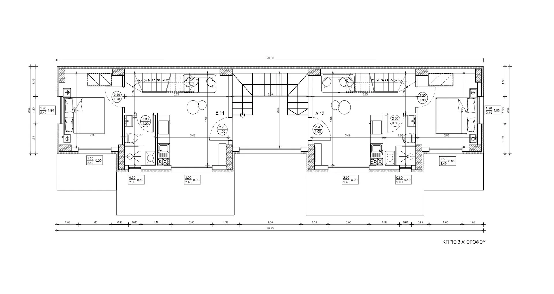
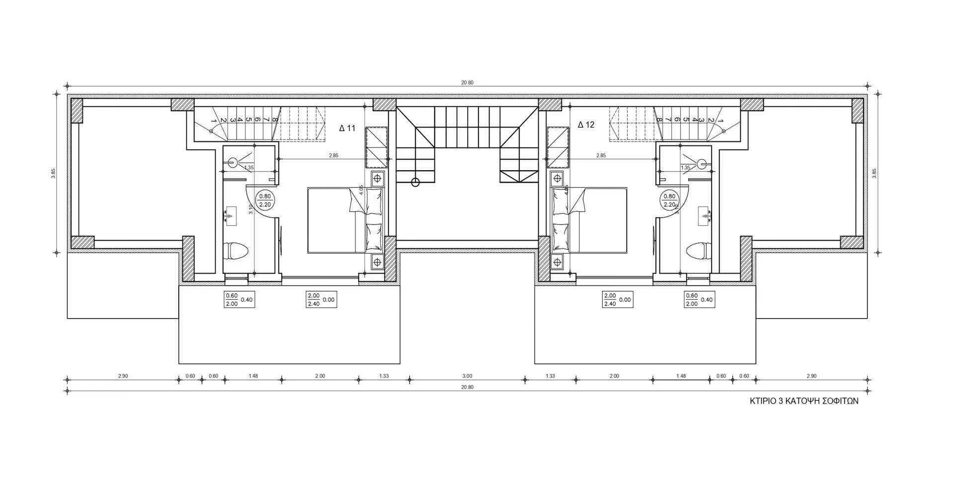
Имотът е разположен в Скала Рахони, на остров Тасос, на около 350 метра от морския бряг. Сградата включва 12 апартамента с практични и добре организирани разпределения, подходящи за лично ползване и сезонен престой.
Жилищата разполагат с балкони, PVC дограма с двоен стъклопакет, входни врати с повишена сигурност и комарници. Към имота има общ плувен басейн, озеленена обща градина и осигурени паркоместа, които повишават комфорта и интереса при отдаване под наем през летния сезон.
Апартаментите се предлагат напълно завършени „до ключ“, с възможност за избор на подови настилки, санитария за баня, кухненски шкафове, интериорни врати и довършителни детайли, което позволява адаптиране според предпочитанията на купувача.
Имотите са подходящи за отдаване под наем през летния сезон. Предлага се съдействие за сезонно управление и организация на наемния процес, което улеснява собственици, които не пребивават постоянно в Гърция.
Очаквана дата на предаване: Май 2028
Информация
Информация:
Имотите са наименовани с текст D4, D5, D8 и т.н;
Маркираните с текст SOLD са продадени, останалите са свободни за покупка.

6 апартамента на партерния етаж с площ от 32,92 кв.м до 37,52 кв.м
Състоящи се от:
⚬ хол с кухненски бокс, 1 спалня, 1 баня

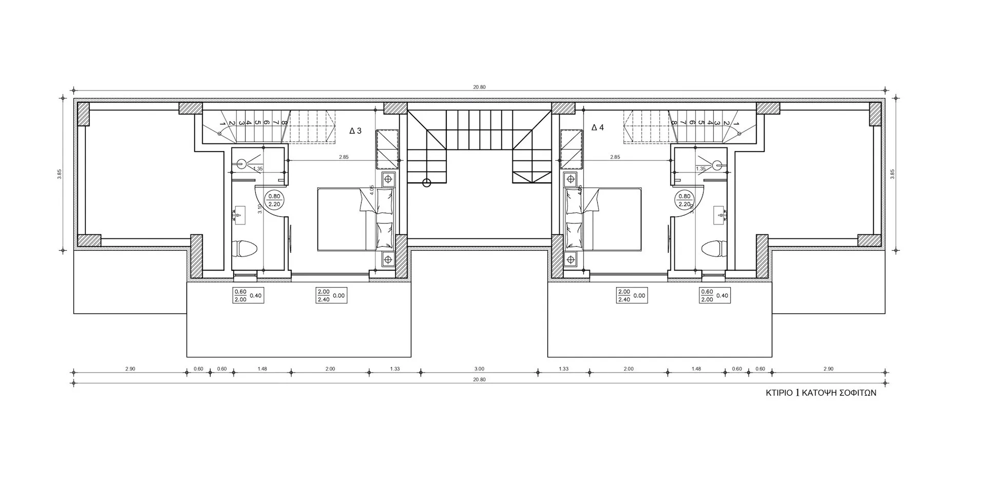
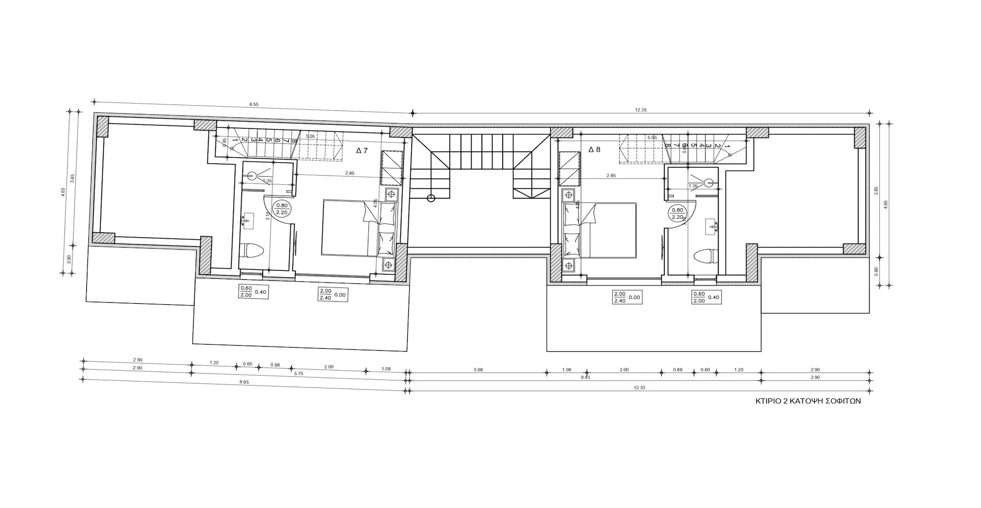
6 апартамента на етаж със софита от 60,47 кв.м
Състоящи се от:
⚬ хол с кухненски бокс, 2 спални, 2 бани

6 апартамента на партерния етаж с площ от 32,92 кв.м до 37,52 кв.м
Състоящи се от:
⚬ хол с кухненски бокс, 1 спалня, 1 баня

6 апартамента на етаж със софита от 60,47 кв.м
Състоящи се от:
⚬ хол с кухненски бокс, 2 спални, 2 бани
Допълнително
Допълнително
Снимки на имота
Снимки
Разпределение и заетост на имотите до момента
Скала Рахони се намира на северозападното крайбрежие на остров Тасос и има голямо туристическо развитие.
Намира се на 11 км от Лименас и представлява пристанището на село Рахони.
Отлично съчетание на море с планина- обширен пясъчен плаж с плитки води и борове,коѝто достигат до морето.

































