Мезонет в Палио
Ексклузивно ново строителство
⟟ Палио
🌊 300 метра от морето
№ на имот: 6075
Допълнитени услуги, които тази обява предлага:
Допълнитени услуги, които тази обява предлага:
5% Гарантирана възвращаемост ▿
Надежден план за изплащане ▿
Надежден план за изплащане ▿
Управление на имота ▿
За имота
За комплекса
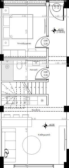
Продава се мезонет с обща площ 84 кв.м в Палио.
Състои се от 2 спални, кухня с хол, 2 бани.
Имотът е в процес на изграждане и разполага с изглед към море, PVC дограма, бронирана врата, паркинг, склад 5 кв.м, градина, басейн, комарници, двоен стъклопакет, таванско помещение.
Намира се на 300 метра от брега на морето.
Информация
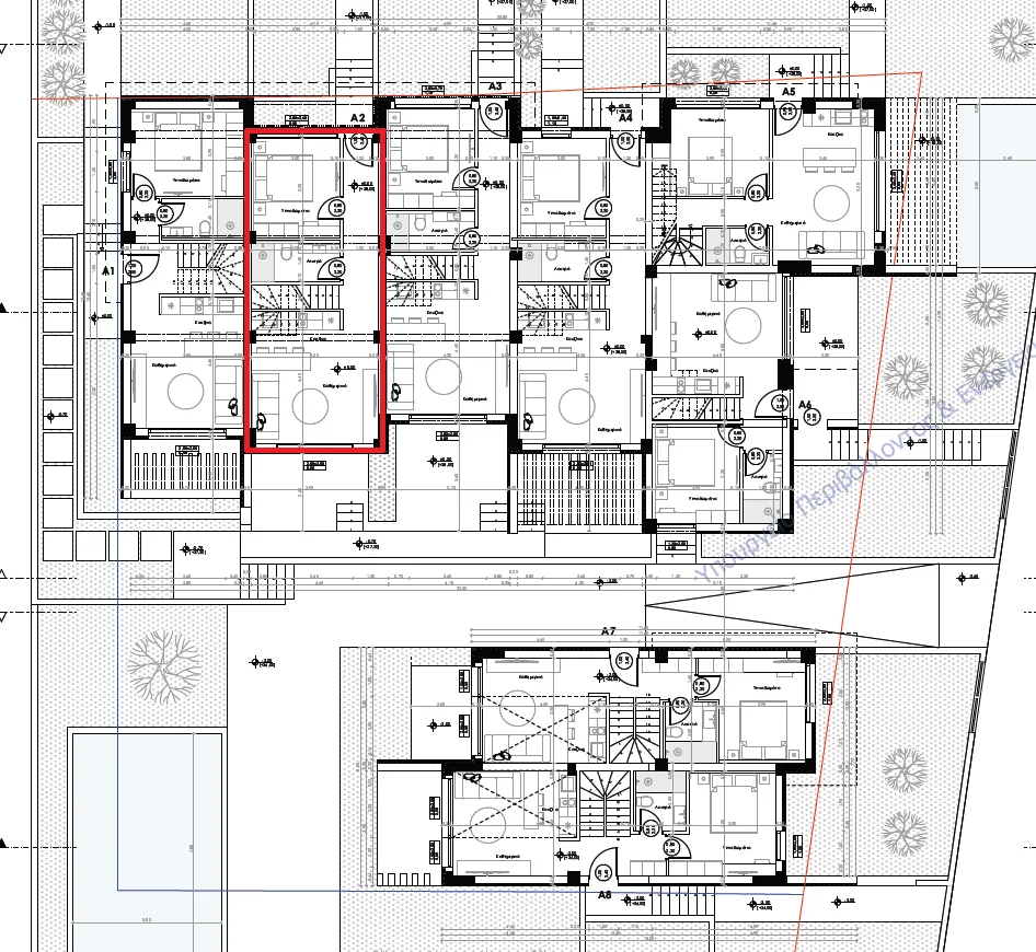
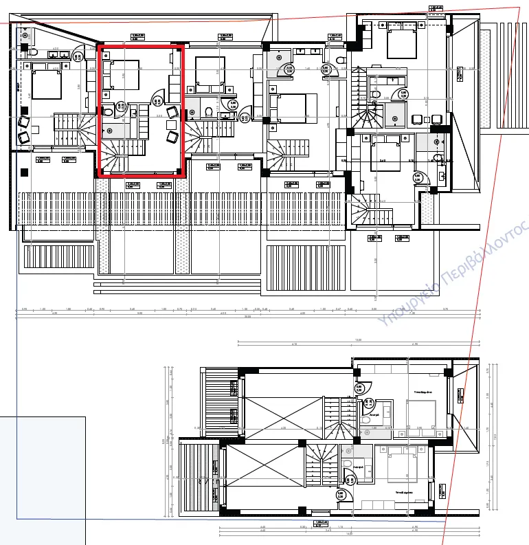
Комплексът включва:
№ на имот: 6075
Тип имот: Мезонет
Етаж: Партер
Спални: 2
Кухни: 1
Дневни: 1
Бани: 2
Местоположение: Палио
Вид оферта: Продава се
Състояние: Ново строителство
Площ на имота: 84 кв.м
Година на строителство: В процес на изграждане
No items found.
No items found.
No items found.
No items found.
Допълнително
Блиндирана врата
Склад / Хранилище

Дограма: PVC
Частна градина
Паркинг
Светъл
Таванско помещение
Снимки на имота
Снимки на комплекса
Разпределение и заетост на имотите до момента
Разпределение и заетост на имотите до момента
Местоположение
Други предложения
Допълнителни услуги, които предлага тази обява:
5% Гарантирана възвращаемост▿
Надежден план за изплащане▿
Управление на имота ▿
Допълнителни услуги, които предлага тази обява:
5% Гарантирана възвращаемост▿
Надежден план за изплащане▿
Управление на имота ▿
Допълнителни услуги, които предлага тази обява:











.webp)






