Мезонет в Неа Перамос
Ексклузивно ново строителство
⟟ Неа Перамос
🌊 800 метра от морето
№ на имот: 6100
Допълнитени услуги, които тази обява предлага:
Допълнитени услуги, които тази обява предлага:
5% Гарантирана възвращаемост ▿
Надежден план за изплащане ▿
Надежден план за изплащане ▿
Управление на имота ▿
За имота
За комплекса
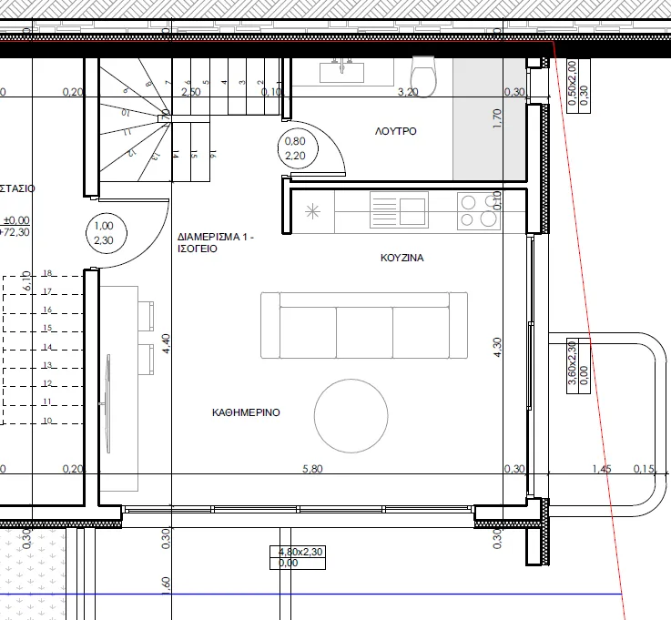
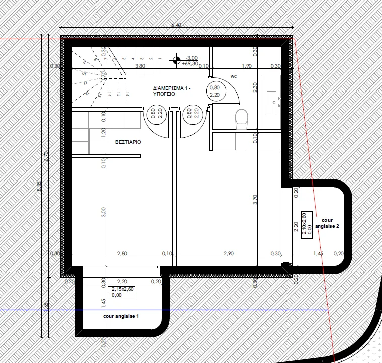
Продава се мезонет с обща площ 90 кв.м на 2 нива в Неа Перамос.
Състои се от 2 спални, кухня с хол, 2 бани.
Имотът е в процес на изграждане и разполага с отопление чрез климатик, гледка, PVC дограма, бронирана врата, комарници, двоен стъклопакет, соларен бойлер.
Намира се на 800 метра от брега на морето.
Информация
Комплексът включва:
№ на имот: 6100
Тип имот: Мезонет
Етаж: Партер
Спални: 2
Кухни: 1
Дневни: 1
Бани: 2
Местоположение: Неа Перамос
Отопление: Климатици
Вид оферта: Продава се
Състояние: Ново строителство
Площ на имота: 90,5 кв.м.
Година на строителство: В процес на изграждане
No items found.
No items found.
No items found.
No items found.
Допълнително
Климатик
Слънчев бойлер
Блиндирана врата
Дограма: PVC
Светъл
Снимки на имота
Снимки на комплекса
Разпределение и заетост на имотите до момента
Разпределение и заетост на имотите до момента
Местоположение
Други предложения
Допълнителни услуги, които предлага тази обява:
5% Гарантирана възвращаемост▿
Надежден план за изплащане▿
Управление на имота ▿
Допълнителни услуги, които предлага тази обява:
5% Гарантирана възвращаемост▿
Надежден план за изплащане▿
Управление на имота ▿
Допълнителни услуги, които предлага тази обява:

.webp)
.webp)
.webp)





