Мезонет в Неа Перамос
Ексклузивно ново строителство
⟟ Неа Перамос
🌊 800 метра от морето
№ на имот: 8003
Допълнитени услуги, които тази обява предлага:
Допълнитени услуги, които тази обява предлага:
5% Гарантирана възвращаемост ▿
Надежден план за изплащане ▿
Надежден план за изплащане ▿
Управление на имота ▿
За имота
За комплекса
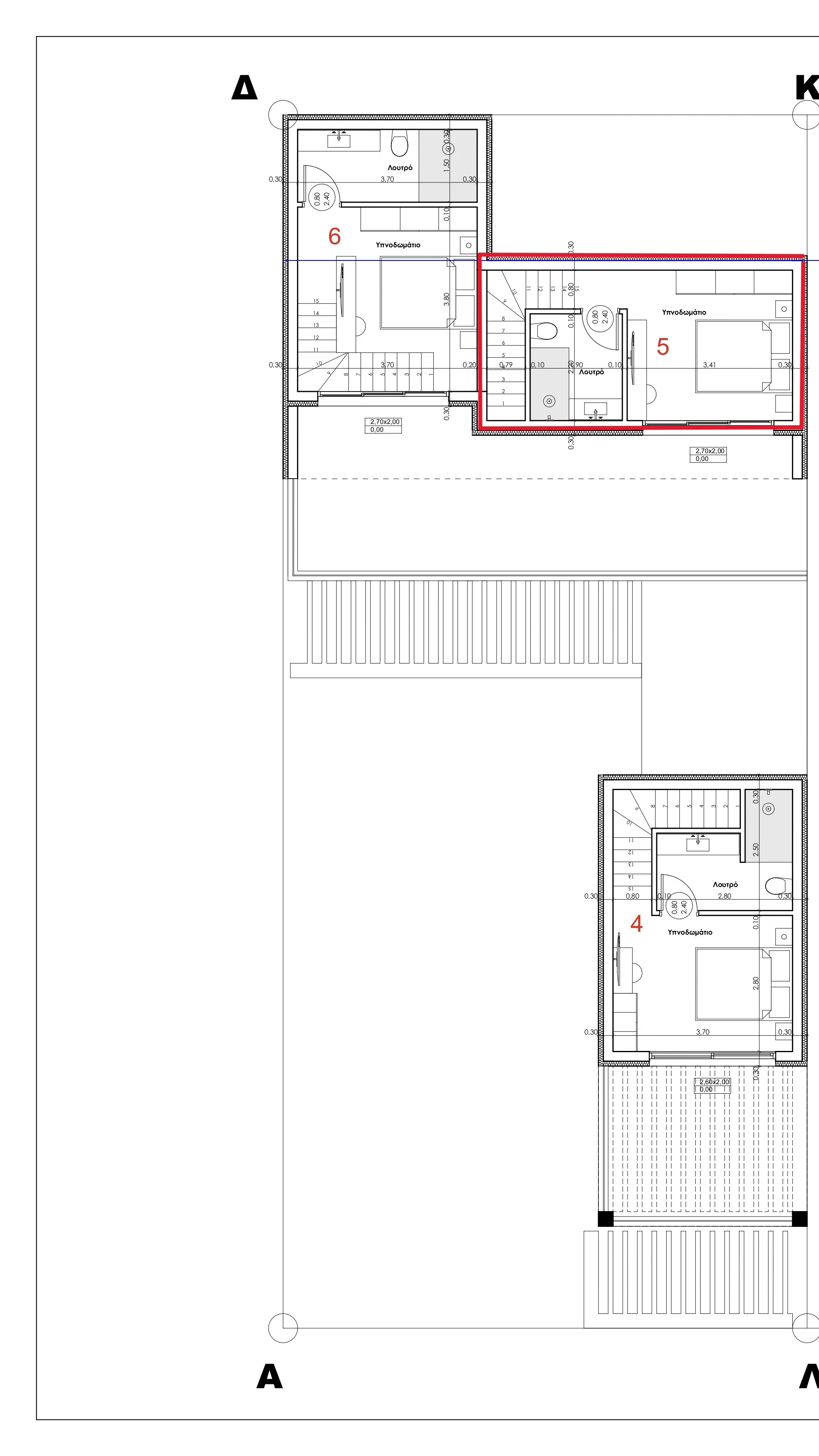
Продава се мезонет с обща площ 67 кв.м. на 2 нива в Неа Перамос.
Състои се от 2 спални, кухня с хол, 2 бани.
Имотът е в процес на изграждане и разполага с отопление чрез климатик, изглед към градски пейзаж, PVC дограма, бронирана врата, комарници, двоен стъклопакет, соларен бойлер, стълби на входа, таванско помещение.
Намира се на 800 метра от брега на морето.
Информация
Комплексът включва:
№ на имот: 8003
Тип имот: Мезонет
Етаж: Първи
Спални: 2
Кухни: 1
Дневни: 1
Бани: 2
Местоположение: Неа Перамос
Отопление: Климатици
Вид оферта: Продава се
Състояние: Ново строителство
Площ на имота: 67 кв.м
Година на строителство: В процес на изграждане
No items found.
No items found.
No items found.
No items found.
Допълнително
Светъл
Блиндирана врата
Слънчев бойлер
Дограма: PVC
Климатик
Снимки на имота
Снимки на комплекса
No items found.
Разпределение и заетост на имотите до момента
Разпределение и заетост на имотите до момента
Местоположение
Други предложения
Допълнителни услуги, които предлага тази обява:
5% Гарантирана възвращаемост▿
Надежден план за изплащане▿
Управление на имота ▿
Допълнителни услуги, които предлага тази обява:
5% Гарантирана възвращаемост▿
Надежден план за изплащане▿
Управление на имота ▿
Допълнителни услуги, които предлага тази обява:
.webp)
%20(1).webp)
.webp)





