Комплекс с 6 имота на 180 метра от морето в Паралия Офринио
5% Гарантирана възвращаемост ▿
Надежден план за изплащане ▿
Надежден план за изплащане ▿
Управление на имота ▿
За имота
За комплекса
В Паралия Офринио се изгражда нов комплекс, разположен само на 180 метра от морето.
Той включва 6 модерни жилища, отличаващи се със съвременен дизайн, просторни и светли помещения и елегантна архитектура.
Всяко от тях е проектирано с мисъл за комфорт и функционалност, създавайки среда, която напълно отговаря на високите изисквания за качествен престой.
Съчетанието между изчистената естетика и привилегированата локация превръща комплексът в отличен избор за жилище, което се откроява със стойност и качество.
Информация
Комплексът включва:
Имотите са наименовани с текст D4, D5, D8 и т.н;
Маркираните с текст SOLD са продадени, останалите са свободни за покупка.

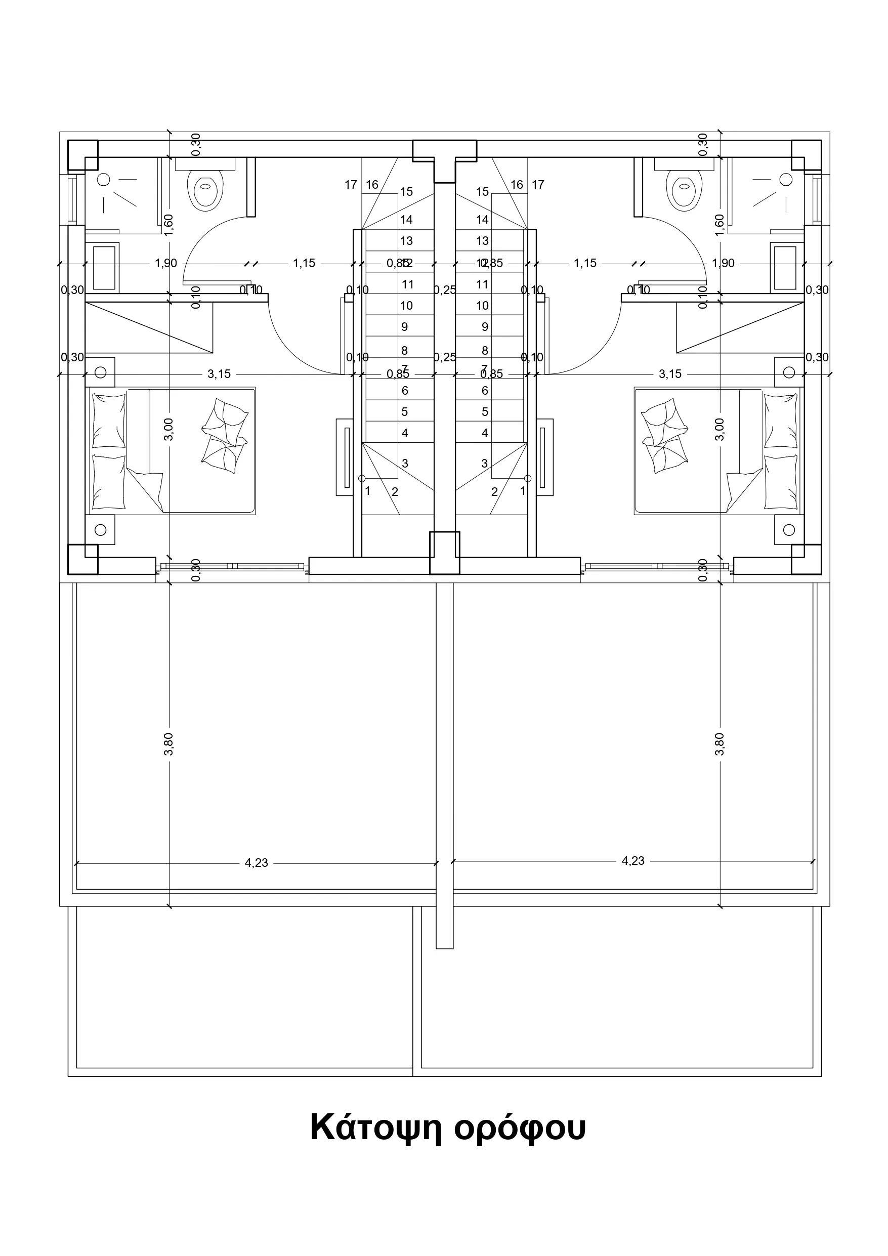
2 апартамента на партерен етаж с площ 54,25 кв.м
Състоящи се от:
⚬ Дневна с кухня, 2 Спални и 1 Баня

2 апартамента на етаж с таванско помещение, с площ 58,92 кв.м
Състоящи се от:
⚬ Дневна с кухня, 2 Спални и 2 Бани

2 двуетажни мезонета с площ 65,16 кв.м
Състоящи се от:
⚬ Дневна с кухня, 2 Спални и 2 Бани

2 апартамента на партерен етаж с площ 54,25 кв.м
Състоящи се от:
⚬ Дневна с кухня, 2 Спални и 1 Баня

2 апартамента на етаж с таванско помещение, с площ 58,92 кв.м
Състоящи се от:
⚬ Дневна с кухня, 2 Спални и 2 Бани

2 двуетажни мезонета с площ 65,16 кв.м
Състоящи се от:
⚬ Дневна с кухня, 2 Спални и 2 Бани
Допълнително
Снимки на имота
Снимки на комплекса
Разпределение и заетост на имотите до момента
Разпределение и заетост на имотите до момента
Паралия Офринио е туристически курорт със 17 километрова непрекъсната крайбрежна ивица наградена със син флаг.
Селището привлича хиляди посетители през летния сезон, но също така има постоянни жители през цялата година.
Намира се в близост до основни забележителности, на 5 км от Амфиполи, на около 60 км от градовете Кавала, Драма и Серес и на 100 км от Солун.
























